Projet travaux :
Abattre un mur porteur en machefer + création de 2 trémies
avr. 2016 ,
95870 BEZONS
Description de la demande :
Démolition d'un mur porteur de 4.10 m de longueur x 2.90 m de hauteur et 20 cm d'épaisseur. C'est le mur périphérique du rdc d'une maison de 2 étages (1er + combles amenagées) sur une cave semi-enterrée et adossé à un pavillon. L'ipn doit reposer sur les murs façade avant et arrière de la maison qui sont en machefer. La maison date des années 3
0. A cela il faut ajouter la création de 2 trémies pour des futurs escaliers - la première dans un plancher béton avec poutrelles en acier (plancher 1er étage). - la deuxième dans un plancher bois (plancher 2ème étage)il faut aussi fermer la trémie actuelle du 1er étage (1m x
0.80 environ). En résumé. Le devis doit comprendre - démolition du mur porteur et enlevement des gravats. - fourniture et pose de l'ipn. - création des trémies (x
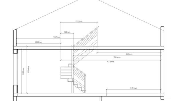
2) et fermeture trémie actuelle 1er étage. Vous trouverez le plan des travaux dans le lien ci-dessous https //drive. Google. Com/open? Id=0bzt5u1tnz2lpd1hoevhjmfd6dzg- page 1 vue de dessus du 2ème étage. Visuel de la trémie du 2ème étage. Plancher bois. - page 2 vue de face. Implantation de l'escalier entre le 1er et le 2ème étage. - page 3 vue de dessus du 1er étage. Visuel de la trémie du 1ère étage (création). Plancher béton. Poutrelles acier. - page 4 vue de côté de l'implantation de l'escalier entre le rdc et le 1er étage. - page 5 vue de face de l'implantation de l'escalier entre le rdc et le 1er étage. On y discerne l'emplacement du mur porteur à abattre (pour laisser passer l'escalier). Cordialement.
Précisions :
0. A cela il faut ajouter la création de 2 trémies pour des futurs escaliers - la première dans un plancher béton avec poutrelles en acier (plancher 1er étage). - la deuxième dans un plancher bois (plancher 2ème étage)il faut aussi fermer la trémie actuelle du 1er étage (1m x
0.80 environ). En résumé. Le devis doit comprendre - démolition du mur porteur et enlevement des gravats. - fourniture et pose de l'ipn. - création des trémies (x
2) et fermeture trémie actuelle 1er étage. Vous trouverez le plan des travaux dans le lien ci-dessous https //drive. Google. Com/open? Id=0bzt5u1tnz2lpd1hoevhjmfd6dzg- page 1 vue de dessus du 2ème étage. Visuel de la trémie du 2ème étage. Plancher bois. - page 2 vue de face. Implantation de l'escalier entre le 1er et le 2ème étage. - page 3 vue de dessus du 1er étage. Visuel de la trémie du 1ère étage (création). Plancher béton. Poutrelles acier. - page 4 vue de côté de l'implantation de l'escalier entre le rdc et le 1er étage. - page 5 vue de face de l'implantation de l'escalier entre le rdc et le 1er étage. On y discerne l'emplacement du mur porteur à abattre (pour laisser passer l'escalier). Cordialement.
Précisions :
- Nombre d'ouvertures importantes dans mur porteur ? ... 1
- Nombre d'ouvertures dans mur porteur pour des fenêtres ? ... 0
- Quel matériaux pour les murs ? ... Machefer
- Surface totale des travaux (m2)? ... 12
- La demande comprend ... La pose + la fourniture des matériaux
Entreprises intéressées par ce projet :
entreprise spécialisées en ouverture de mur porteur secteur BEZONS (95870) : 4.67/5 (12 avis)
Estimation de devis : 11 000 euros
Bonjour,pour votre projet vous comptez 11000 euros la pose + la fourniture de matériaux,pas les escalier. Merci,je reste a votre disposition. Cordialement
Estimation de devis : 11 000 euros
Bonjour,pour votre projet vous comptez 11000 euros la pose + la fourniture de matériaux,pas les escalier. Merci,je reste a votre disposition. Cordialement
-- .. --
entreprise spécialisées en ouverture de mur porteur secteur BEZONS (95870) : 4.00/5 (1 avis)
Estimation de devis : 12 000 euros
Il faut compter 12000
Estimation de devis : 12 000 euros
Il faut compter 12000
-- .. --
entreprise spécialisées en ouverture de mur porteur secteur BEZONS (95870) : 3.24/5 (11 avis)
Estimation de devis : 12 000 euros
Bonjour pour les prestation suivant ouverture et deux trémies avec une escalier en béton et une en bois il faut compter
Estimation de devis : 12 000 euros
Bonjour pour les prestation suivant ouverture et deux trémies avec une escalier en béton et une en bois il faut compter
-- .. --
entreprise spécialisées en ouverture de mur porteur secteur BEZONS (95870) : 5.00/5 (1 avis)
Estimation de devis : 22 000 euros
Il faut compter avec la garantit décennal
Estimation de devis : 22 000 euros
Il faut compter avec la garantit décennal





