Projet travaux :
Rénovation immeuble
août 2015 ,
62450 BAPAUME
-
Autres projets de travaux :
- renovation 62156 ETAING
- pose parquet en ligne
- dalle vide sanitaire
- chauffage réversible
- plaquiste 20m2
- grillage rigide lamelle
- pour enlever gravats
- installation photovoltaïque 3kw
- remplacement porte d'entrée appartement
- toiture ardoise m2
- étaiement plancher
- porte fenêtre bois 2 vantaux
- chape liquide plancher chauffant
- peinture anti-rouille
Description de la demande :
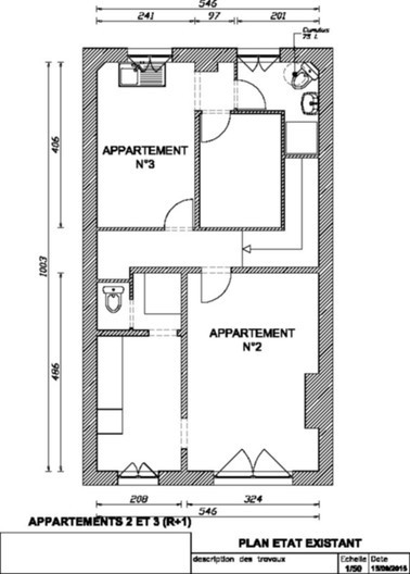
Rénovation complète d'un immeuble comprenant 5 lots d'habitations de différentes surfaces (4 studios et 1 type
2). Biens en l'état depuis de nombreuses années : simple vitrage. Absence de vmc. Présence d'amiante (non détériorée). 2ème étage : toiture a refaire complètement. Avec une vérification préalable de la charpente à réaliser et une isolation complète des combles à faire + changement de 2 velux de tailles standards en façade arrière et 2 fenêtres de tailles standards en façade avant. A ce même niveau. Présence de 2 studios à rénover : changement des 2 douches. De 2 éviers. 2 ballons d'eaux. Des toilettes. Installation de vmc non existantes. Mise aux normes électriques (tableaux. Prises. Points lumineux et installation de chauffages électriques dans les pièces de vie) 1er niveau : 1 t1 bis en façade arrière à rénover. 2 bâtis tailles standards à remplacer avec persiennes. Changement du ballon d'eau. De la douche. Des wc. De l'évier. Remise aux normes électricités et installation d'un radiateur pour un piece servant de séjour et chambre. Création vmc 1 studio en façade avant avec remplacement fenêtre standard et persienne et remises aux normes électrique avec installation d'un radiateur pour une pièce de vie de 10 m carrés. Création vmc sur ce niveau : faire un diagnostic sur l'isolation des murs existantes. Rez de chaussée : apt t2 de 45 m carrés en façade arrière. Changement de 2 grands velux avec persiennes. Changement d'une porte fenêtre. 1 petit puit de lumière et 2 fenêtres standards. Changement. Des toilettes. De la baignoire. De l'évier de salle de bain avec peu être une création de point d'eau dans les toilettes. Mise aux normes électricité : point sur tableau existant. Prises. Points lumineux. Installation complète de radiateurs électriques avec condamnation du chauffage au fuel existant (vider la cuve et condamner celle-ci a la cave). Installation vmc. Immeuble extérieur : remplacer quelques briques (une dizaine maximum) et rejointoyer la face avant de l'immeuble en brique (environ 10 m carrés de surface) et surface du côté suivant tarif (environ 30 m carrés). Diagnostiquer un problème de fissure sur l'enduit recouvrant les briques a l'arrière (possibilité d'avoir des photos sur demande) et traiter ce problème ainsi qu'un infiltration sur la jonction de toiture entre l'immeuble principale et la salle de bain du type
2. Partie commune : point sur électricité (installation de 3 prises). Conclusion : les matériaux utilisés devront être de bonnes qualités (garantie demandée) et non d'entrée de gamme. La présentation de l'attestation de garantie décennale sera obligatoire avant toute signature de devis. Un problème d'humidité est existant dans l'immeuble : les vmc devront donc être très performantes. Cordialement.
Précisions :
2). Biens en l'état depuis de nombreuses années : simple vitrage. Absence de vmc. Présence d'amiante (non détériorée). 2ème étage : toiture a refaire complètement. Avec une vérification préalable de la charpente à réaliser et une isolation complète des combles à faire + changement de 2 velux de tailles standards en façade arrière et 2 fenêtres de tailles standards en façade avant. A ce même niveau. Présence de 2 studios à rénover : changement des 2 douches. De 2 éviers. 2 ballons d'eaux. Des toilettes. Installation de vmc non existantes. Mise aux normes électriques (tableaux. Prises. Points lumineux et installation de chauffages électriques dans les pièces de vie) 1er niveau : 1 t1 bis en façade arrière à rénover. 2 bâtis tailles standards à remplacer avec persiennes. Changement du ballon d'eau. De la douche. Des wc. De l'évier. Remise aux normes électricités et installation d'un radiateur pour un piece servant de séjour et chambre. Création vmc 1 studio en façade avant avec remplacement fenêtre standard et persienne et remises aux normes électrique avec installation d'un radiateur pour une pièce de vie de 10 m carrés. Création vmc sur ce niveau : faire un diagnostic sur l'isolation des murs existantes. Rez de chaussée : apt t2 de 45 m carrés en façade arrière. Changement de 2 grands velux avec persiennes. Changement d'une porte fenêtre. 1 petit puit de lumière et 2 fenêtres standards. Changement. Des toilettes. De la baignoire. De l'évier de salle de bain avec peu être une création de point d'eau dans les toilettes. Mise aux normes électricité : point sur tableau existant. Prises. Points lumineux. Installation complète de radiateurs électriques avec condamnation du chauffage au fuel existant (vider la cuve et condamner celle-ci a la cave). Installation vmc. Immeuble extérieur : remplacer quelques briques (une dizaine maximum) et rejointoyer la face avant de l'immeuble en brique (environ 10 m carrés de surface) et surface du côté suivant tarif (environ 30 m carrés). Diagnostiquer un problème de fissure sur l'enduit recouvrant les briques a l'arrière (possibilité d'avoir des photos sur demande) et traiter ce problème ainsi qu'un infiltration sur la jonction de toiture entre l'immeuble principale et la salle de bain du type
2. Partie commune : point sur électricité (installation de 3 prises). Conclusion : les matériaux utilisés devront être de bonnes qualités (garantie demandée) et non d'entrée de gamme. La présentation de l'attestation de garantie décennale sera obligatoire avant toute signature de devis. Un problème d'humidité est existant dans l'immeuble : les vmc devront donc être très performantes. Cordialement.
Précisions :
- Surface de combles à isoler (m2) ... 30
- Surface de murs intérieurs à isoler (m2) ... 30
- Type d'isolation pour les murs intérieurs ? ... Thermique
- Quel matériaux pour les murs ? ... Brique
- Quel matériaux pour les menuiseries ? ... PVC
- Nombre de fenêtres standard ... 7
- Nature du ravalement ... Rejointoillage
- Nombre de portes-fenêtres ... 1
- Nombre de vélux ... 4
- Surface totale des travaux (m2)? ... 50
- Matériaux pour le toit ... Ardoises
- Nombre de WC? ... 4
- Nombre d'eviers? ... 5
- Nombre de baignoires? ... 1
- Nombre de douches? ... 3
- Nombre de petites fenêtres ... 1
- Nombre de ballons d'eau chaude ... 4
- Nombre d'arrivées/évacuations d'eau ... 2
- Longueur du circuit d'eau froide (m) ... 9
- Electricité ? ... Encastrée
- Surface du toit (en m2) ... 50
- Energie du système de chauffage ? ... Electricité
- Quel matériaux pour la charpente ? ... Bois
- Installer ou revoir un tableau électrique? ... Oui
- La demande comprend ... La pose + la fourniture des matériaux
Entreprises intéressées par ce projet :
entreprise de rénovation secteur BAPAUME (62450)
Estimation de devis : 1 350 euros
Bonjour je revient vers vous au sujet de votre chantier en renovation total et avec des materiaux de bonnes gammes certificats fournis ( lafarge zender grohe siemmens bosch schneider electric etc menuiserie millet ou schuco avec ou sans motorisation ) il faut compter au environ de 135
0.00 ¤ le m²
Estimation de devis : 1 350 euros
Bonjour je revient vers vous au sujet de votre chantier en renovation total et avec des materiaux de bonnes gammes certificats fournis ( lafarge zender grohe siemmens bosch schneider electric etc menuiserie millet ou schuco avec ou sans motorisation ) il faut compter au environ de 135
0.00 ¤ le m²
-- .. --
entreprise de rénovation secteur BAPAUME (62450)
Estimation de devis : 30 000 euros
Bonjour il est évident que le prix moyen en rénovation varie au mètre carré selon les travaux à réaliser et l'ensemble des travaux c'est-à-dire plomberie électricité isolation chauffage etc... Pour donner une fourchette large on va de 300 à 800 euros le mètre carré sachant que le panier moyen se situe en général approximativement à 560 euros au mètre carré c'est pour cela que je vous invite éventuellement à prendre rendez-vous avec un de nos metreur afin d'évaluer vraiment la réalisation des travaux et d'effectuer un devis le plus précis possible.
Estimation de devis : 30 000 euros
Bonjour il est évident que le prix moyen en rénovation varie au mètre carré selon les travaux à réaliser et l'ensemble des travaux c'est-à-dire plomberie électricité isolation chauffage etc... Pour donner une fourchette large on va de 300 à 800 euros le mètre carré sachant que le panier moyen se situe en général approximativement à 560 euros au mètre carré c'est pour cela que je vous invite éventuellement à prendre rendez-vous avec un de nos metreur afin d'évaluer vraiment la réalisation des travaux et d'effectuer un devis le plus précis possible.
-- .. --
entreprise de rénovation secteur BAPAUME (62450) : 5.00/5 (3 avis)
Estimation de devis : 35 000 euros
Bonjour mr pour votre demande d estimation c est difficile de vous donnez une estimation car il manque pas mal d information nombre de m2 type de toiture type de support murs et sol dimension des velux etc... Si je peut vous donnez une fourchet ce serai entre 20000¤ au plus bas est 45000¤ peut etre au plus haut mes rien de certain le mieux c est de voir sur place vous pourez avoir un devis gratuit sur la totalité de votre rénovation. Cordialement. Je reste a votre disposition pour d autre information complémentaire.
Estimation de devis : 35 000 euros
Bonjour mr pour votre demande d estimation c est difficile de vous donnez une estimation car il manque pas mal d information nombre de m2 type de toiture type de support murs et sol dimension des velux etc... Si je peut vous donnez une fourchet ce serai entre 20000¤ au plus bas est 45000¤ peut etre au plus haut mes rien de certain le mieux c est de voir sur place vous pourez avoir un devis gratuit sur la totalité de votre rénovation. Cordialement. Je reste a votre disposition pour d autre information complémentaire.




